
Por mucho tiempo una antigua edificación de dos niveles y de fachada continua, característica del centro de la ciudad, se sometía al peso de la estructura de un gran letrero publicitario sobre su cubierta y de un uso que despreciaba los valores del inmueble y su contexto. La construcción se localiza frente a la plaza de armas de la ciudad y contiguo a su catedral, ambos elementos relevantes dentro de la configuración urbana y que se incorporan al diseño como parte de él mismo.
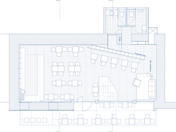
El proyecto de este bar/restaurant se configura en dos niveles; el primero corresponde al acceso y al área de preparaciones en que una barra media entre la zona pública con la de trabajo. Parte de la cocina se exhibe hacia el acceso y hacia la calle por medio de un gran vano que en su espesor acoge una segunda barra que mira hacia la calle y la plaza. El segundo piso corresponde al salón, el cual se resuelve en un solo recinto, pero con distintas instancias determinadas por la ubicación de la escalera y por elementos particulares que otorgan distintos formatos. Por otra parte, un balcón pre-existente que recorre el largo completo de la fachada se readecúa y se transforma en el elemento particular del local configurándose como un corredor urbano elevado que bajo su techumbre inclinada, que hace coincidir su cumbrera con la altura de la edificación contigua, se dispone para gozar de las vistas hacia la catedral, la plaza y la ciudad misma. Finalmente, el diseño de este restaurant evita la decoración y la incorporación de elementos ornamentales con el fin de poner en valor los elementos propios del lugar exhibiendo las texturas de los materiales pre-existentes como las vigas de su antigua techumbre, el entablado de sus pisos y las albañilerías.
De esta forma se cualifica la espacialidad del recinto, pero a su vez el material y su textura permiten concebir que la lectura del tamaño de ese interior trascienda a lo que precisa su metraje, vinculándose en continuidad con la materialidad de la catedral y con un jardín interior enredaderas que trae parte del verdor de los árboles de la plaza al salón articulando a través de esto la relación entre el exterior y el interior.
Arquitecto
Felipe Alarcón Carreño
Asesor Estructural
Juvenal Ortega
Ubicación
Independencia 320, Linares, Chile
Superficie construida
132 m²
Superficie de terreno
132 m²
Año de proyecto
2017
Materiales predominantes
Estructura de acero, Ladrillo fiscal, Planchas de acero perforado.












